伊豆の別荘|あおばリゾート > (戸建(売買))地域から探す > 伊東市 > 伊東市大原一丁目 店舗付戸建

伊東市大原一丁目 店舗付戸建

中古一戸建

NEW

価格 1,400万円

伊東市大原一丁目 店舗付戸建

伊東の国道沿いの店舗付き住宅
広い土地

【外観】 | 伊東市大原一丁目 店舗付戸建
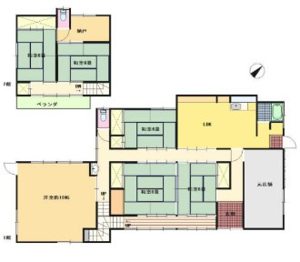
【間取り】 | 伊東市大原一丁目 店舗付戸建
【玄関】 | 伊東市大原一丁目 店舗付戸建
【前面道路含む現地写真】 | 伊東市大原一丁目 店舗付戸建
【前面道路含む現地写真】 | 伊東市大原一丁目 店舗付戸建
【その他】 | 伊東市大原一丁目 店舗付戸建

お問い合わせ先

株式会社あおばリゾート 
伊東店

0120-05-3331

営業時間 09:00~18:00

定休日 水曜日、第1・3火曜日

この物件についてお問い合わせ

【外観】 | 伊東市大原一丁目 店舗付戸建
【間取り】 | 伊東市大原一丁目 店舗付戸建
【玄関】 | 伊東市大原一丁目 店舗付戸建
【前面道路含む現地写真】 | 伊東市大原一丁目 店舗付戸建
【前面道路含む現地写真】 | 伊東市大原一丁目 店舗付戸建
【その他】 | 伊東市大原一丁目 店舗付戸建
価格 1,400万円
所在地 静岡県伊東市大原1丁目1-5 間取り 6LDK+1S(納戸)
交通
  • 伊東駅より1.6㎞
築年 築65年


MAP

※地図上に表示される物件の位置は付近住所に所在することを表すものであり、実際の物件所在地とは異なる場合がございます。


PROPERTY INFORMATION

情報の見方

物件詳細

物件番号:92300709 情報更新日:2026年01月08日 次回更新予定日:2026年01月22日

所在地 静岡県伊東市大原1丁目1-5
交通
  • 伊東駅より1.6㎞
土地面積(坪数) 327.68㎡(99.12坪) 建物面積(坪数) 178.14㎡(53.88坪)
構造 木造 築年月 1960年 5月
接道状況 - 向き -
都市計画 非線引区域 用途地域 準住居
建ぺい率 60% 容積率 200%
階建 2階建 その他の法令上の制限 景観法/日影制限有/静岡県建築基準条例
駐車場 - 土地権利 所有権
温泉 - 地目/地勢 宅地/平坦
取引形態 仲介 取引条件の有効期限 2026年01月22日
現況/引き渡し時期 空家/相談 担当 伊東店
設備条件
  • 公営水道
  • 公共下水
  • 電気有
スタッフコメント 広い土地が魅力の店舗付き住宅です。
古い建物なので、建て替え前提でお考え頂くことをお勧めです。
取扱会社
  • 株式会社あおばリゾート 伊東店
  • 静岡県伊東市湯川1丁目9番16号
  • TEL:0120-05-3331
  • 静岡県知事 (7) 第10508号
  • 公益社団法人全日本不動産保証協会
QRコード

QRコード

このQRコードを読み取ることで、スマホでも物件情報を確認できます。


CONTACT

株式会社あおばリゾート 伊東店

お電話でのお問い合わせ

0120-05-3331

営業時間 09:00~18:00

定休日 水曜日、第1・3火曜日

WEBからのお問い合わせ


SIMILAR

トップへ戻る